Vapaat toimitilat

Toimiva, viihtyisä ja sopivan kokoinen toimitila on tärkeä osa yrityksen menestystä. Cushman & Wakefield auttaa tiloja hakevia yrityksiä ja sijoittajia löytämään parhaat toimitilat, oli sitten kyseessä toimistotila, liiketila, varastotila tai tuotantotila.

Eerikinkatu 4, Helsinki

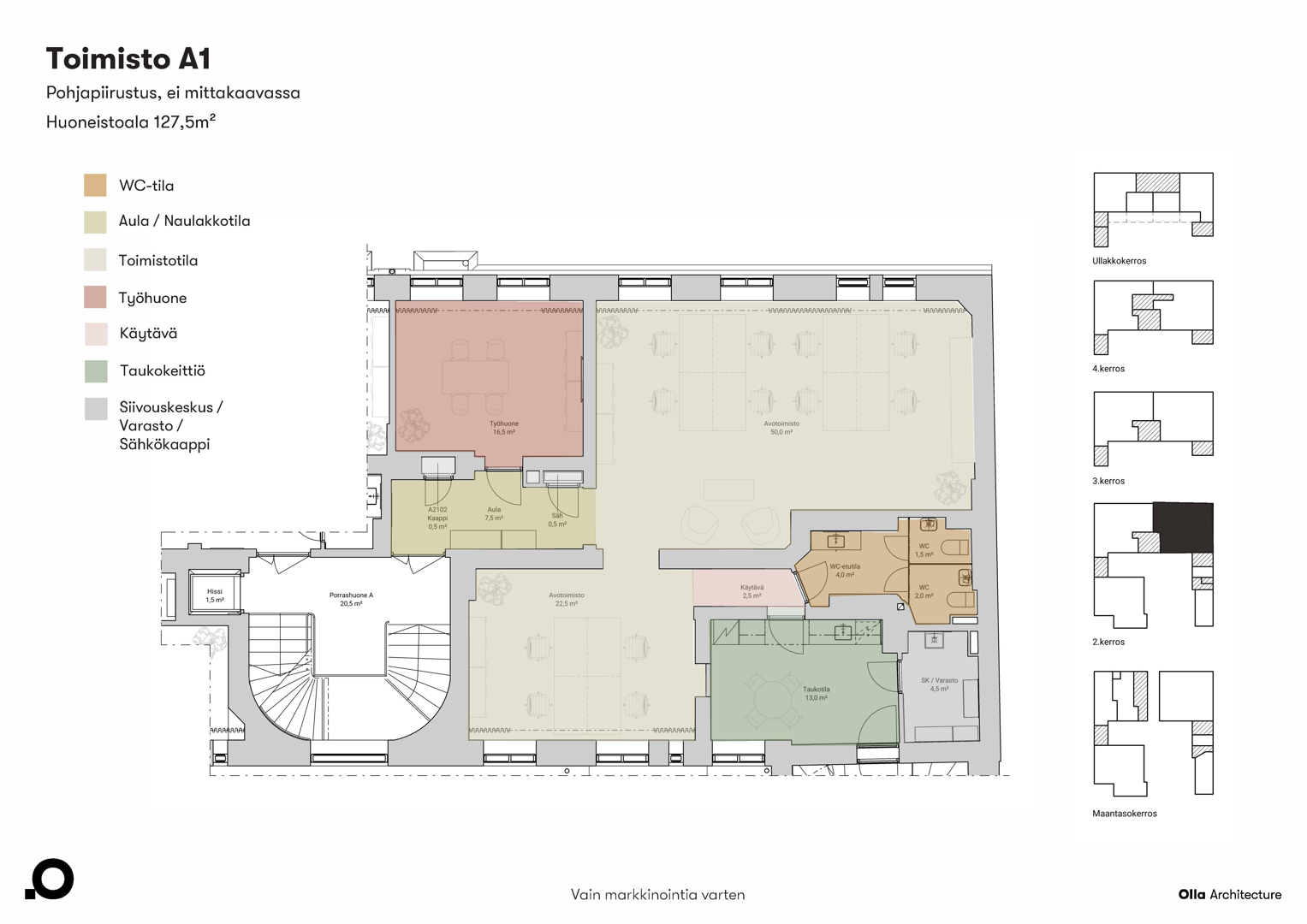
Vuokrattava, Toimistotila, Helsinki, Kamppi, 127 m2

Kohde #33613

Kuvaus

Vuokrattavana 2. kerroksen 127,5 m2 toimistotila. Rakennus valmistunut peruskorjaukseseta 2025. Kaikki tilat remontoitu vanhaan tyyliin ja niissä parkettilattiat. Painovoimainen ilmanvaihto.

Arvokas vanha kiinteistö. Rakennusvuosi 1896, peruskorjattu 2025. Edustava rappukäytävä, jossa hissi. Arkkitehti Theodor Höijer.

Liikenneyhteydet

Erinomaiset liikenneyhteydet julkisilla. Kiinteistö sijaitsee kävelymatkan päässä Kampin terminaalista ja metroasemasta. Pysäköinti Forumin parkkihallissa. Kiinteistön sisäpihalla muutama paikka.

Yhteystiedot

Toimistovuokraus
Toimistovuokraus

0108368400

info.fi@cushwake.com

Toimistotila

Eerikinkatu 4
Helsinki 00100

  • Kaupunginosa: Kamppi
  • Pinta-ala: 127 m2
  • Kerros: 2. kerros
  • Vapautuu:
  • Rakennusvuosi: 1896
  • Vuokraluokka: 25-30 €/m2

Ota yhteyttä kohteesta

Jos kiinnostuit kohteesta, ota yhteyttä puhelimitse tai sähköisellä yhteydenottolomakkeella.

Puhelin: 0108368400

Hyväksyn tietosuojaselosteen

Cushman & Wakefield suosittelee

Etkö löydä etsimääsi?

Ota yhteyttä meidän asiantuntijaan.