Vacant premises
A functional, comfortable and appropriately sized office space is an important part of a company’s success. Cushman & Wakefield helps companies and investors looking for facilities find the best business premises, be it office space, retail space, warehouse space or production space.
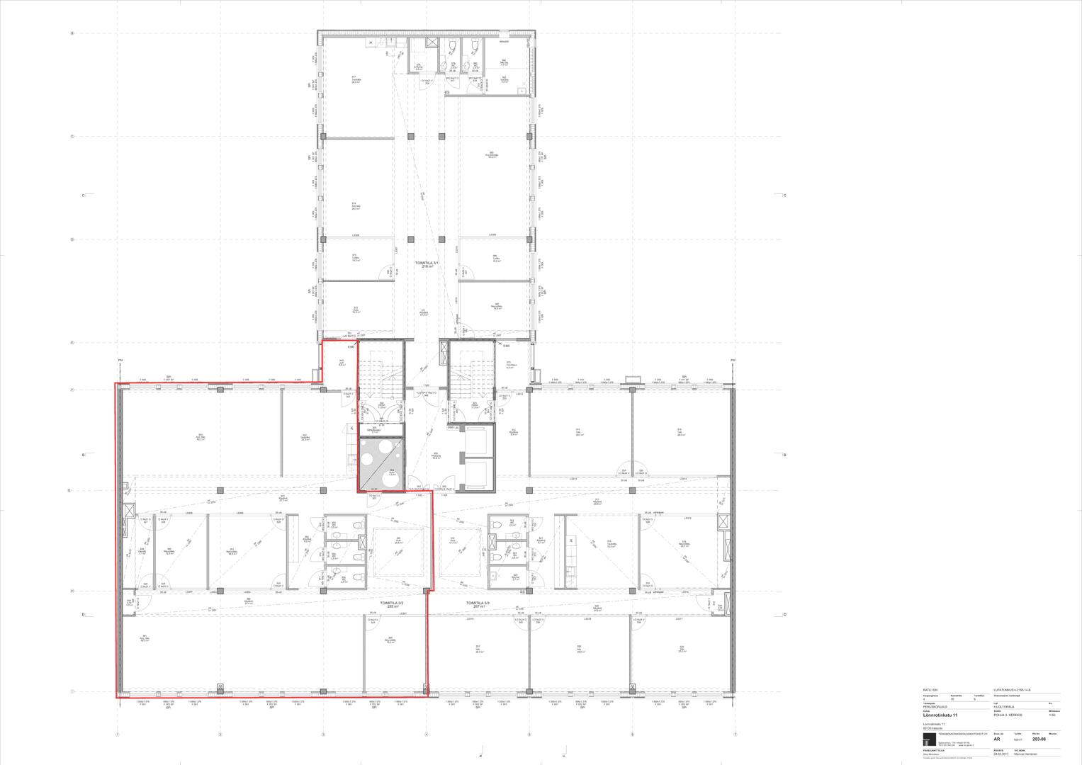
Lönnrotinkatu 11, Helsinki
For rent, Office, Helsinki, Kamppi, 291 sqm
Target #24079
Description in Finnish, for further details please contact one of our experts
3. kerroksen vapaa toimistotila uudistetussa Lönnrotinkatu 11:ssa. Tila koostuu avotilasta, kolmesta erikokoisesta neuvotteluhuoneesta ja puhelinkopista.
Lönnrotinkatu 11 (Lönkka 11) on vuonna 1972 valmistunut toimistorakennus, joka sijaitsee Helsingin ydinkeskustassa, erinomaisten liikenneyhteyksien äärellä. Kiinteistön kaikki sisätilat ja talotekniikka on uudistettu vastaamaan nykypäivän toimitilavaatimuksia ja rakennuksen julkisivu on saanut uuden ilmeen. Kiinteistöllä on LEED Platinum maininta. Talon katutasossa palvelevat ravintola ja kahvila. Kiinteistössä on vuokrattavia autopaikkoja sekä latauspaikkoja sähköautoille.
Kohde sijaitsee erittäin keskeisellä paikalla Helsingin keskustassa Kampissa, muutaman korttelin päässä Mannerheimintiestä. Puolen kilometrin säteellä sijaitsevat mm. Kampin kauppakeskus, Stockmannin tavaratalo ja Forumin kauppakeskus.
Ensimmäiseen kerrokseen sijoittuu liiketiloja ja palveluita. Toimistokerrokset sijoittuvat kerroksiin 2.-6. Näiden suunnittelussa huomioidaan erityisesti tilojen muuntojoustavuus. Pysäköintimahdollisuudet ovat poikkeuksellisen hyvät; kellarikerroksessa on 18 autopaikkaa ja piha-alueella 22 autopaikkaa. Kohteen lähellä on myös runsaasti pysäköintilaitoksia.
Communications
Raitiovaunupysäkille 300 m (linjat 3, 6, 7A, 7B ja 10). Kampin metroasemalle ja bussiterminaaliin 600 m. Rautatieasemalle 900 m.
Contact

Toimistovuokraus
0108368400
info@cushwake.fi
Floor plans / Brochures







Office
Lönnrotinkatu 11
Helsinki 00120
- Area: Kamppi
- Surface area: 291 sqm
- Floor: 3. kerros
- Available:
- Year of construction: 1972
- Rental category: 25-30 €/sqm