Vacant premises
A functional, comfortable and appropriately sized office space is an important part of a company’s success. Cushman & Wakefield helps companies and investors looking for facilities find the best business premises, be it office space, retail space, warehouse space or production space.
Urho Kekkosen katu 3-7, Helsinki
For rent, Office, Helsinki, Kamppi, 228 sqm
Target #27342
Description in Finnish, for further details please contact one of our experts
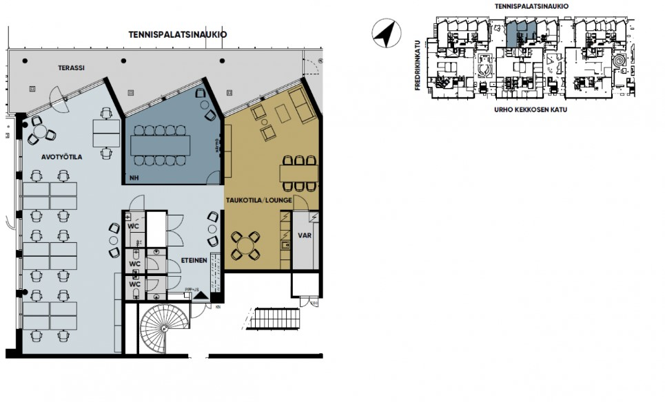
Laadukas 228 m2 toimisto paraatipaikalla aivan Kampin sydämessä. Tilaan saa hyvin sovitettua niin avotyötilaa, neuvotteluhuoneen kuin hyvänkokoisen lounge-alueen tulevan vuokralaisen toiveiden mukaisesti. Toimistotilan yhteydessä myös 50 m2 terassi, josta avautuu näkymät Tennispalatsinaukiolle. Tila sijaitsee Urhontornin 3. kerroksessa.
Aivan Helsingin ytimessä sijaitsevat Trigoran toimitilat. Trigora on kiinteä osa Helsingin keskuksen näkyvää maamerkkiä, Kampin keskusta, josta löytyy lähi- ja kaukoliikenteen linja-autoterminaali ja metroasema sekä yli sata kauppaa, ravintolaa ja muuta palvelua. Trigoran kolme vaikuttavaa tornia sisältävät yhteensä lähes 12000m2 toimitilaa.
Trigorassa on laaja valikoima erikokoisia ja -mallisia toimistoja. Kaikki tilat ovat korkeita ja avaria niissä on koko kerroksen kokoiset ikkunat. Korkeatasoinen tekninen varustelu kattaa esimerkiksi Cat6-kaapeloinnin sekä tehokkaan ilmanvaihdon. Toimitilat ovat helposti muunneltavissa muuttuvien tarpeiden mukaisesti. Toimistotiloista on kulku sisäkautta Kampin keskuksen ja Forumin pysäköintihalleihin.
Communications
Erinomaiset julkiset liikenneyhteydet. Bussi-, metro-, raitiovaunupysäkit ja taksiasema vieressä. Rautatieasemalle 5 minuutin kävelymatka. Pysäköinti Forumin ja Salomonkadun parkkihallissa. P-City ja P-Kamppi parkkihalleista on suora kulkuyhteys tähän taloon.
Contact

Toimistovuokraus
0108368400
info.fi@cushwake.com
Floor plans / Brochures
Not available
Other available spaces
-
Urho Kekkosen katu 3-7
Office, 2124sqm
-
Urho Kekkosen katu 3-7
Office, 1389sqm
-
Urho Kekkosen katu 3-7
Office, 735sqm
-
Urho Kekkosen katu 3-7
Office, 580sqm
-
Urho Kekkosen katu 3-7
Office, 383sqm
-
Urho Kekkosen katu 3-7
Office, 228sqm
-
Urho Kekkosen katu 3-7
Office, 226sqm
-
Urho Kekkosen katu 3-7
Office, 655sqm







Office
Urho Kekkosen katu 3-7
Helsinki 00100
- Area: Kamppi
- Surface area: 228 sqm
- Floor: 3. kerros
- Available:
- Year of construction: 2006
- Rental category: 31-35 €/sqm