Vapaat toimitilat

Toimiva, viihtyisä ja sopivan kokoinen toimitila on tärkeä osa yrityksen menestystä. Cushman & Wakefield auttaa tiloja hakevia yrityksiä ja sijoittajia löytämään parhaat toimitilat, oli sitten kyseessä toimistotila, liiketila, varastotila tai tuotantotila.

Hakakalliontie 13 HYVINKÄÄ, Hyvinkää

Vuokrattava, Varastotila, Hyvinkää, Hakakallion teollisuusalue, 15465 m2

Kohde #25102

Kuvaus

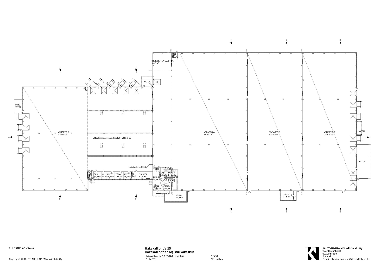
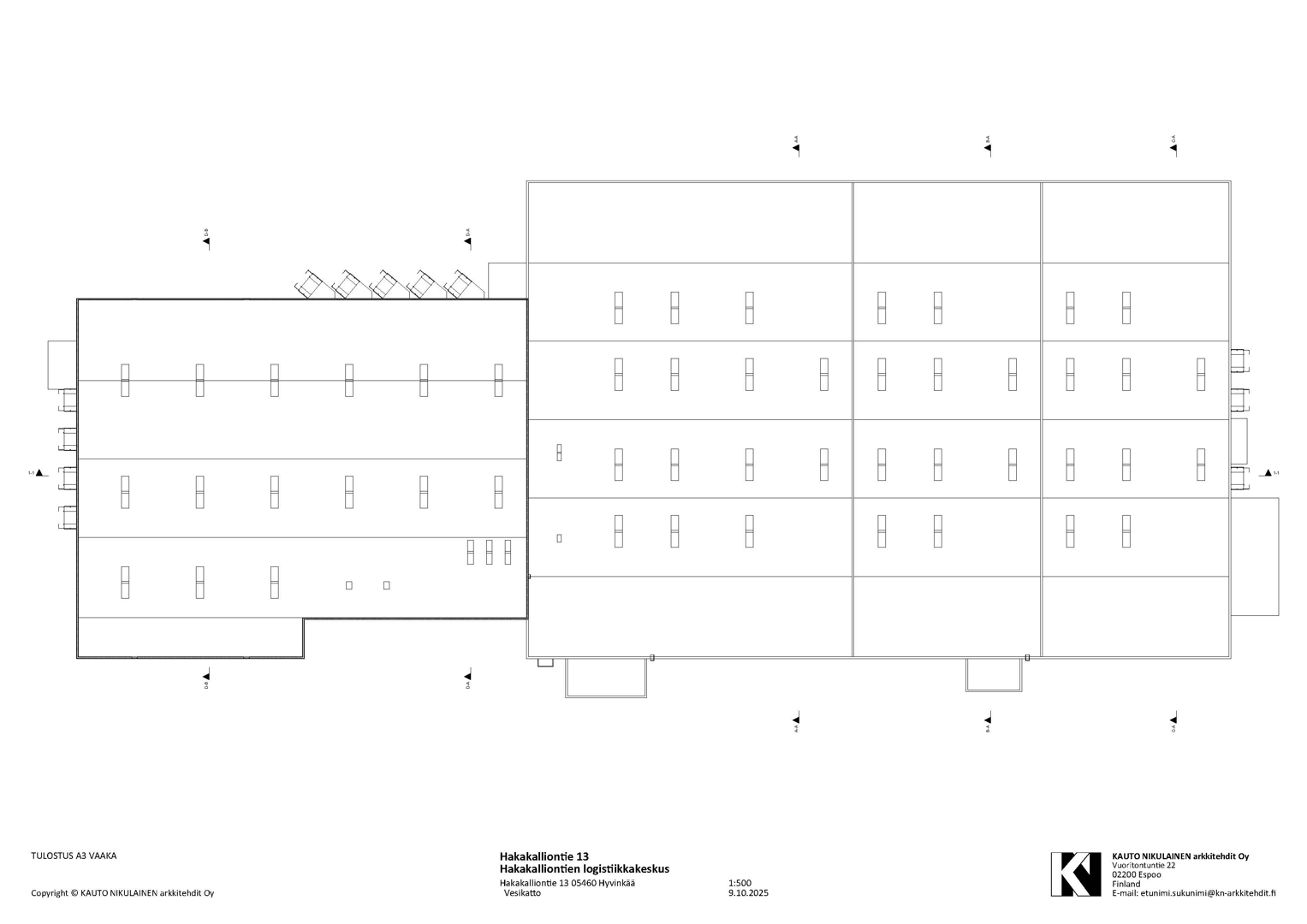
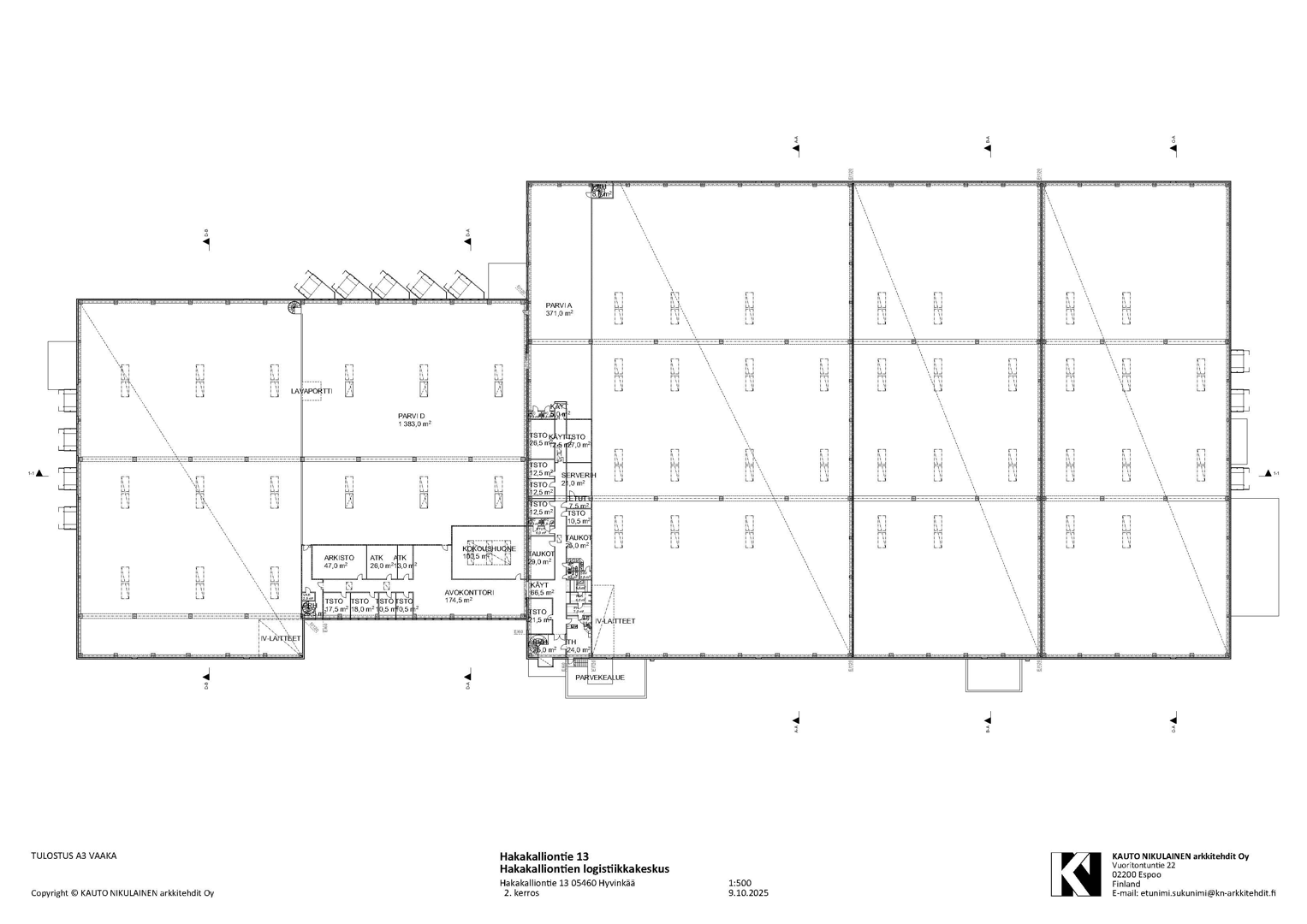
Vuokrataan erinomaiset tilat tuotantoon, logistiikkaan ja varastointiin. Kokonaisuus tarjoaa 15 466 m² muuntojoustavaa tilaa:
yhtenäinen, korkea halli sekä kahteen kerrokseen sijoittuvat toimisto-, neuvottelu- ja sosiaalitilat. Kiinteistössä on muun muassa 12 lastaustaskua, lastaussilta kahdella nosto-ovella sekä ajoramppi nosto-ovella. Tilat voidaan vuokrata myös osissa tarpeen mukaan. Erinomainen sijainti ja olosuhteet palvella asiakkaita varasto- ja logistiikkatarpeissa! Vieressä kulkee Hangonväylä, Tampereen valtatielle 5,7 km ja Vuosaaren satamaan noin 40 minuutin ajomatka. Tontilla hyvin tilaa raskaalle liikenteelle.

Kiinteistö Oy Hyvinkään Hakakalliontie 13 on logistiikka- ja varastokiinteistö Hyvinkään Hakakallion teollisuusalueella. Kohde on rakennettu vuonna 1994 ja sitä on laajennettu vuosina 1997, 2001 ja 2004. Kiinteistön vuokrattava pinta-ala on 15 466 m². Kokonaisuus koostuu laajasta, yhtenäisestä hallista sekä kahteen kerrokseen sijoittuvista toimisto-, neuvottelu- ja sosiaalitiloista. Tilat voidaan vuokrata yhdelle tai useammalle käyttäjälle tarpeen mukaan. Tontti mahdollistaa lisärakentamisen noin 10 000 m² teollisuus-, logistiikka- tai varastokäyttöön. Hakakalliontie 13:n sijainti kehittyvällä Hakakallion alueella ja Helsinki – Hämeenlinna – Tampere -moottoritien E12 sekä valtatie 25:n solmukohdassa tarjoaa erinomaisen saavutettavuuden ja olosuhteet palvella asiakkaita varasto- ja logistiikkatarpeissa.

Yhteystiedot

Toimistovuokraus
Toimistovuokraus

0108368400

info.fi@cushwake.com

Pohjakuvat / Esitteet

Ei ole saatavilla

Varastotila

Hakakalliontie 13 HYVINKÄÄ
Hyvinkää 05460

  • Kaupunginosa: Hakakallion teollisuusalue
  • Pinta-ala: 15465 m2
  • Kerros: Useita kerroksia
  • Vapautuu: Suunnitteilla
  • Rakennusvuosi:
  • Vuokraluokka: €/m2

Ota yhteyttä kohteesta

Jos kiinnostuit kohteesta, ota yhteyttä puhelimitse tai sähköisellä yhteydenottolomakkeella.

Puhelin: 0108368400

Hyväksyn tietosuojaselosteen

Etkö löydä etsimääsi?

Ota yhteyttä meidän asiantuntijaan.