Vapaat toimitilat

Toimiva, viihtyisä ja sopivan kokoinen toimitila on tärkeä osa yrityksen menestystä. Cushman & Wakefield auttaa tiloja hakevia yrityksiä ja sijoittajia löytämään parhaat toimitilat, oli sitten kyseessä toimistotila, liiketila, varastotila tai tuotantotila.

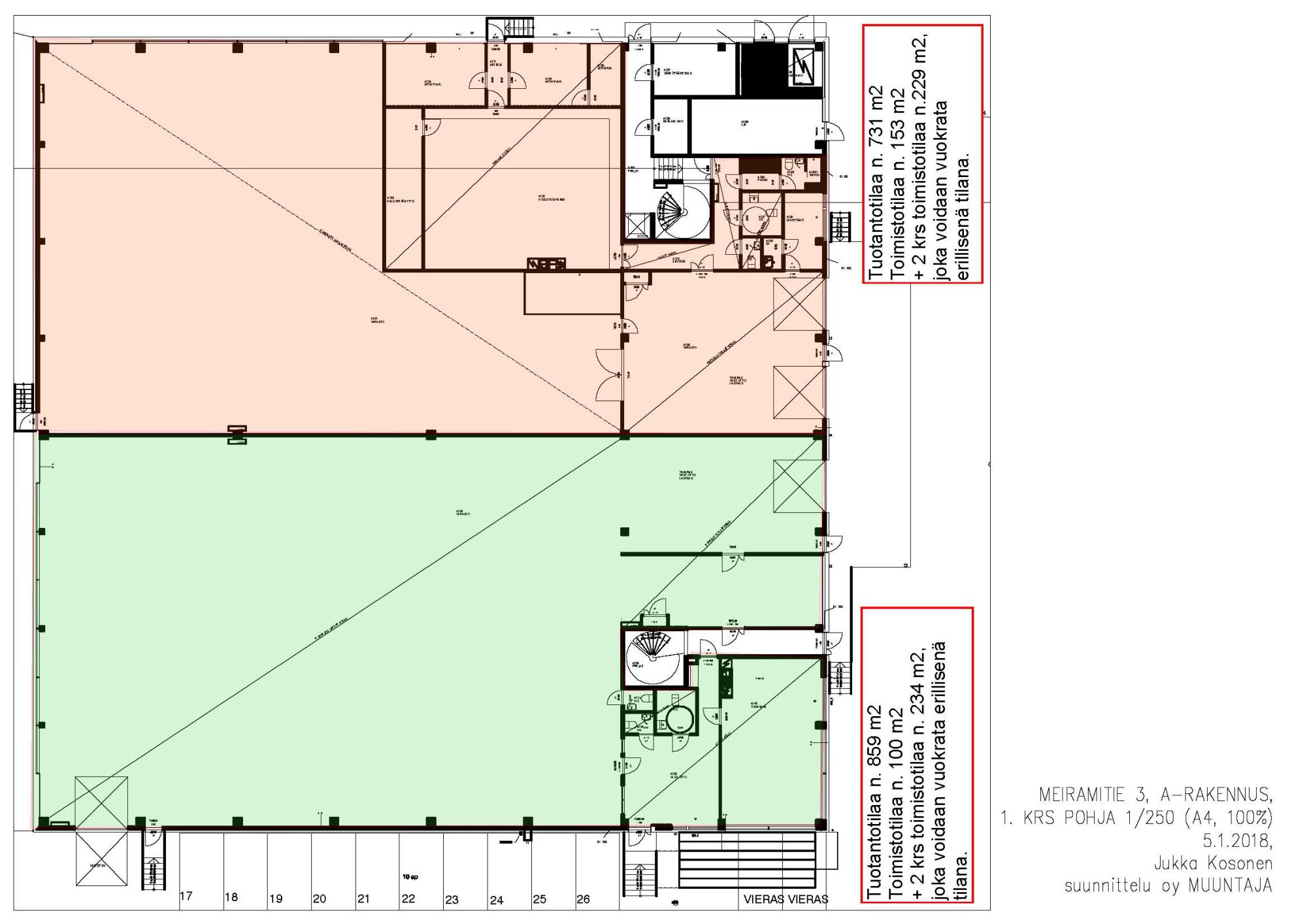
Meiramitie 3 A-TALO, Vantaa

Vuokrattava, Varastotila, Vantaa, Koivuhaka, 873 m2

Kohde #14011

Kuvaus

Hyvä ja siisti varasto/toimisto-kokonaisuus lähellä lentokenttää:

– varasto 560 m2, vapaa korkeus 8.m. Lattian kantavuus, pistekuorma 5 tn, jakautuva kuorma 3 tn/m?.
– toimisto 174 m2
– sos.tila 48 m2
– yhteinen lastausalue, josta osuus 91m2

STC Meiramitie. Tuotanto-, varasto- sekä toimistotilaa samassa kohteessa. Ihanteellinen pk-yrityksille, jotka tarvitsevat toimistoa varastotilojensa yhteyteen.

Liikenneyhteydet

STC Meiramitie sijaitsee Vantaan Koivuhaassa Tuusulanväylän ja Helsinki-Vantaan lentoaseman välittömässä läheisyydessä. Bussipysäkille 200 m, juna-asemalle ja lentokentälle 4 km.

Yhteystiedot

Toimistovuokraus
Toimistovuokraus

0108368400

info.fi@cushwake.com

Pohjakuvat / Esitteet

Varastotila

Meiramitie 3 A-TALO
Vantaa 01300

  • Kaupunginosa: Koivuhaka
  • Pinta-ala: 873 m2
  • Kerros: 1. kerros
  • Vapautuu: 1.7.2026
  • Rakennusvuosi: 2009
  • Vuokraluokka: 5-10 €/m2

Ota yhteyttä kohteesta

Jos kiinnostuit kohteesta, ota yhteyttä puhelimitse tai sähköisellä yhteydenottolomakkeella.

Puhelin: 0108368400

Hyväksyn tietosuojaselosteen

Cushman & Wakefield suosittelee

Etkö löydä etsimääsi?

Ota yhteyttä meidän asiantuntijaan.