Vapaat toimitilat

Toimiva, viihtyisä ja sopivan kokoinen toimitila on tärkeä osa yrityksen menestystä. Cushman & Wakefield auttaa tiloja hakevia yrityksiä ja sijoittajia löytämään parhaat toimitilat, oli sitten kyseessä toimistotila, liiketila, varastotila tai tuotantotila.

Keilasatama 5, Espoo

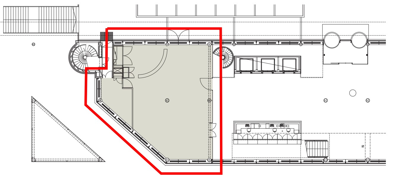
Vuokrattava, Toimistotila, Espoo, Keilaniemi, 157 m2

Kohde #34876

Kuvaus

Laadukas 1. kerroksen 157 m2 toimistotila Keilaniemen parhaalla paikalla metroaseman läheisyydessä. Lasinen rakennus huokuu teknologista edelläkävijyyttä ja huippuosaamista.

Keilasatamassa on laajat ja monipuoliset nykyaikaisen Business Parkin palvelut.

Keilasatama on ikoninen maamerkki Espoon Keilaniemessä. Tyylikäs ja palveluiltaan laadukas toimistotalo sijaitsee Keilaniemen parhaalla paikalla metroaseman läheisyydessä.

Keilasatamassa on laajat ja monipuoliset palvelut. Vuokralaisten käytössä on kuntosali ja erillisveloituksella personal trainer -palvelut. Työntekijöitä ja kokoustajia palvelee monipuolinen ravintola ja kahvila.

Kiinteistössä on tiloja yhdeksässä kerroksessa eri kokoluokan yrityksille 300:sta neliöstä ylöspäin. Talon toisessa kerroksessa on laaja neuvotteluhuonekeskus, jossa on yhteensä 21 neuvottelutilaa 8:n–200:n henkilön tilaisuuksiin. Yleiset tilat on uudistettu vuoden 2022 alussa.

Keskeinen sijainti Kehä 1:n ja Länsiväylän vieressä takaa hyvät julkisen liikenteen palvelut. Lisäksi kohteessa ja sen välittömässä läheisyydessä on runsaasti pysäköintitilaa henkilökunnan käyttöön.

Kiinteistössä on ilmastointi, jäähdytys ja oma varavoimajärjestelmä. Talon toisessa kerroksessa on laaja neuvotteluhuonekeskus, jossa on 21 neuvottelutilaa 8-200 henkilön tilaisuuksiin. Kaikilla vuokralaisilla on neuvottelutilojen käyttöoikeus ilman lisäveloitusta. Sopimuksen mukaan vuokralaisten käytettävissä: postin käsittely ja jakelu, puhelinvaihde, vastaanottopalvelut, atk-konesali- ja tietoverkkopalvelut, ravintola, edustustilat.

Kohteessa ja sen välittömässä läheisyydessä runsaasti pysäköintitilaa henkilökunnan käyttöön.

Liikenneyhteydet

Liikenneyhteydet Keilaniemeen ovat hyvät. Julkiset liikenneyhteydet parantuvat entisestään, kun Länsimetro valmistuu ja Keilaniemen metroasema otetaan käyttöön.

Yhteystiedot

Toimistovuokraus
Toimistovuokraus

0108368400

info.fi@cushwake.com

Toimistotila

Keilasatama 5
Espoo 02150

  • Kaupunginosa: Keilaniemi
  • Pinta-ala: 157 m2
  • Kerros: 1. kerros
  • Vapautuu: Heti vapaa
  • Rakennusvuosi: 2001
  • Vuokraluokka: 25-30 €/m2

Ota yhteyttä kohteesta

Jos kiinnostuit kohteesta, ota yhteyttä puhelimitse tai sähköisellä yhteydenottolomakkeella.

Puhelin: 0108368400

Hyväksyn tietosuojaselosteen

Cushman & Wakefield suosittelee

Etkö löydä etsimääsi?

Ota yhteyttä meidän asiantuntijaan.