Vapaat toimitilat

Toimiva, viihtyisä ja sopivan kokoinen toimitila on tärkeä osa yrityksen menestystä. Cushman & Wakefield auttaa tiloja hakevia yrityksiä ja sijoittajia löytämään parhaat toimitilat, oli sitten kyseessä toimistotila, liiketila, varastotila tai tuotantotila.

Aleksanterinkatu 11, Helsinki

Vuokrattava, Ravintolatila, Helsinki, Kluuvi, 750 m2

Kohde #33521

Kuvaus

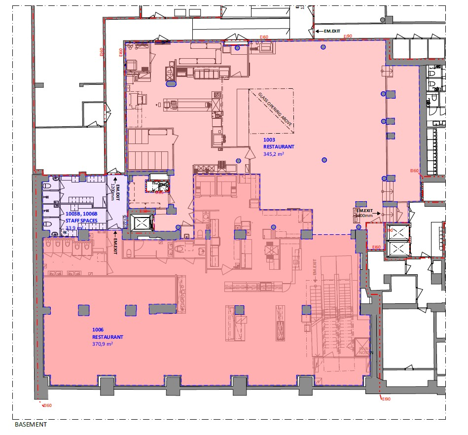
Vuokrattavana kellarikerroksen 750 m2 ravintolatila huippusijainnilla Helsingin keskustassa, Aleksanterinkadun varrella! Kyseessä on primepaikka, jossa toimii tällä hetkellä ravintolaketjut Burger King ja Rax.
Tila on jaettu kahteen osaan: 345 m² ja 371 m², jotka voidaan vuokrata erikseen tai yhdessä.

Erinomainen tilaisuus liiketoiminnalle vilkkaalla sijainnilla, missä asiakasvirrat ovat taattuja. Tila on valmis ravintolakäyttöön.

Liiketilojen vuokraus ja tiedustelut: C&W Retail Services, puh. 010 836 8418, retail.fi@cushwake.com.

The First on primepaikalla, Helsingin ydinkeskustassa, Aleksin ja Kluuvin kulmassa sijaitseva upea ja arvokas rakennus, joka tarjoaa huippuluokan toimitiloja. Tämä historiallinen toimistokiinteistö on Suomen vanhin betonirakenteinen liiketalo ja se on valmistunut täydellisestä saneerauksesta vuonna 2020. Sen toimitilat vastaavat täydellisesti nykytoimistovuokralaisen vaatimuksiin. Tilat ovat avaria, valoisia sekä erittäin muuntautumiskelpoisia.

Saneerauksen yhteydessä uudistettiin talon pääaula, joka avautuu suurin lasiseinin Kluuvikadun suuntaan. Sisäänkäynti on erityisen edustava. Rakennuksen palvelut ovat monipuoliset, kattosaunasta ensiluokkaisiin kokoustiloihin ja avaraan sisäpihaan, jossa voi vaikkapa nauttia lounasta. Talon katutasossa on rakennusta elävöittäviä liiketiloja ja ympäristössä runsaasti ravintoloita, myymälöitä sekä hotelleja. Talossa on pyöräparkki sekä suihku- ja pukuhuonetilat kellarikerroksessa. Toimistot sijaitsevat kerroksissa 2.-7. ja tilat ovat räätälöitävissä vuokralaisen toiveiden mukaan ja ne toimivat hyvin sekä huonetoimistona että tehokkaana avokonttorina.

Liikenneyhteydet

Aleksanterinkatua pitkin kulkevat raitiovaunut 3B, 3T, 4, 4T, 7A ja 7B. Rautatieasemalle, josta juna- ja metroyhteydet, on lyhyt kävelymatka. Metroyhteys myös Kaisaniemestä. Bussiyhteydet Rautatientorilta, Elielinaukiolta ja Kampin keskuksesta.

Yhteystiedot

C&W Retail Services
C&W Retail Services

0108368418

retail.fi@cushwake.com

Ravintolatila

Aleksanterinkatu 11
Helsinki 00100

  • Kaupunginosa: Kluuvi
  • Pinta-ala: 750 m2
  • Kerros: Kellarikerros
  • Vapautuu: Sop. mukaan
  • Rakennusvuosi: 1909, 1945-1950
  • Vuokraluokka: 25-30 €/m2

Ota yhteyttä kohteesta

Jos kiinnostuit kohteesta, ota yhteyttä puhelimitse tai sähköisellä yhteydenottolomakkeella.

Puhelin: 0108368418

Hyväksyn tietosuojaselosteen

Cushman & Wakefield suosittelee

Etkö löydä etsimääsi?

Ota yhteyttä meidän asiantuntijaan.