Vapaat toimitilat

Toimiva, viihtyisä ja sopivan kokoinen toimitila on tärkeä osa yrityksen menestystä. Cushman & Wakefield auttaa tiloja hakevia yrityksiä ja sijoittajia löytämään parhaat toimitilat, oli sitten kyseessä toimistotila, liiketila, varastotila tai tuotantotila.

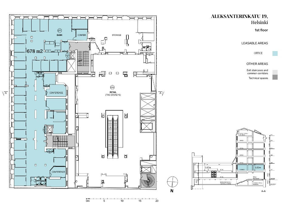
Aleksanterinkatu 19, Helsinki

Vuokrattava, Toimistotila, Helsinki, Kluuvi, 678 m2

Kohde #27239

Kuvaus

Erittäin hieno ja edustava kiinteistö, jossa vapaana 678m2 toimisto toisesta kerroksesta. Talon tilat koostuvat arvokiinteistölle tunnusomaisesti suurehkoista huoneista ja ovat korkeakattoiset sekä valoisat. tämä tila on jaettu vielä tiiviimmin työhuoneisiin, jotka ovat kuitenkin purettavissa avaten tilaa laajempiin vyöhykkeisiin. Tila sijaitsee kiinteistön kulmassa ja jatkuu Keskuskadun puoleiseen osaan.

Aleksi-Hermes on ydinkeskustan uusrenesanssia edustava arvokiinteistö, joka on rakennettu vuonna 1898. Aleksi-Hermeksen kiinteistössä omaleimaisinta ovat korkeat huoneet ja vetovoimainen sijainti keskellä vilkkainta Helsinkiä, Aleksanterinkadun ja Keskuskadun kulmassa. Aleksi-Hermes kuuluu Helsingin ydinkeskustan vetovoimaiseen Citycenterin kauppakeskus- ja toimitilakokonaisuuteen. Sen korttelista löytyy lukuisa joukko kaupan alan toimijoita ja palveluita terveydenhuollosta pankkeihin ja ravintoloihin.

Liikenneyhteydet

Kiinteistö sijaitsee Helsingin ydinkeskustassa Stockmannin tavarataloa vastapäätä. Erinomaiset liikenneyhteydet kaikilla julkisilla liikennevälineillä. Kiinteistön välittömässä läheisyydessä on useita pysäköintilaitoksia. Rautatieasema sijaitsee aivan kulman takana ja Kamppiin on kävelyetäisyys.

Yhteystiedot

Toimistovuokraus
Toimistovuokraus

0108368400

info.fi@cushwake.com

Pohjakuvat / Esitteet

Ei ole saatavilla

Toimistotila

Aleksanterinkatu 19
Helsinki 00100

  • Kaupunginosa: Kluuvi
  • Pinta-ala: 678 m2
  • Kerros: 2. kerros
  • Vapautuu:
  • Rakennusvuosi: 1898
  • Vuokraluokka: €/m2

Ota yhteyttä kohteesta

Jos kiinnostuit kohteesta, ota yhteyttä puhelimitse tai sähköisellä yhteydenottolomakkeella.

Puhelin: 0108368400

Hyväksyn tietosuojaselosteen

Cushman & Wakefield suosittelee

Etkö löydä etsimääsi?

Ota yhteyttä meidän asiantuntijaan.