Vapaat toimitilat
Toimiva, viihtyisä ja sopivan kokoinen toimitila on tärkeä osa yrityksen menestystä. Cushman & Wakefield auttaa tiloja hakevia yrityksiä ja sijoittajia löytämään parhaat toimitilat, oli sitten kyseessä toimistotila, liiketila, varastotila tai tuotantotila.
Itsehallintokuja 6 Talo 2, Espoo
Vuokrattava, Toimistotila, Espoo, Perkkaa, 363 m2
Kohde #25171
Kuvaus
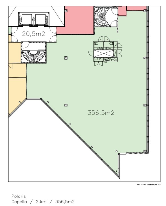
Vuokrataan moderni ja valoisa toimitila 356,5 m2 Polaris Business Parkin Capella-talossa. Lisäksi 6,5 m2 jyvitys jaetusta aulatilasta.
Vuokralaisilla on käytettävissä Polariksen laadukas ja kattava palveluvalikoima. Business Park sijaitsee näkyvällä paikalla, erinomaisten kulkuyhteyksien varrella Perkkaalla, lähellä Leppävaaraa.
Polaris on kolmen toimistorakennuksen (Capella, Castor ja Vega) ja parkkitalon yrityspuisto Espoon Leppävaarassa. Vuonna 2008 valmistunut kiinteistössä on yhteensä noin 17 700 m2 laadukkaasta toimistotilaa. Polaris on täyden palvelun yrityspuisto, jonne työntekijöiden ja yritysvieraiden on ilo tulla joka päivä. Laaja palvelutarjonta tukee päivittäisiä toimia ja helpottaa arkea.
Liikenneyhteydet
Bussipysäkille 350 m, juna-asemalle 1,1 km, lentoasemalle 19,4 km.
Yhteystiedot
Toimistovuokraus
0108368400
info.fi@cushwake.com
Pohjakuvat / Esitteet
Kiinteistön muut vapaat tilat
-
Itsehallintokuja 6 Talo 2
Toimistotila, 594m2
-
Itsehallintokuja 6 Talo 2
Toimistotila, 356m2
-
Itsehallintokuja 6 Talo 2
Toimistotila, 246m2
-
Itsehallintokuja 6 Talo 2
Toimistotila, 236m2
-
Itsehallintokuja 6 Talo 2
Toimistotila, 363m2
-
Itsehallintokuja 6 Talo 2
Toimistotila, 924m2
-
Itsehallintokuja 6 Talo 2
Toimistotila, 274m2
Toimistotila
Itsehallintokuja 6 Talo 2
Espoo 02600
- Kaupunginosa: Perkkaa
- Pinta-ala: 363 m2
- Kerros: 2. kerros
- Vapautuu:
- Rakennusvuosi: 2009
- Vuokraluokka: 16-20 €/m2