Vapaat toimitilat

Toimiva, viihtyisä ja sopivan kokoinen toimitila on tärkeä osa yrityksen menestystä. Cushman & Wakefield auttaa tiloja hakevia yrityksiä ja sijoittajia löytämään parhaat toimitilat, oli sitten kyseessä toimistotila, liiketila, varastotila tai tuotantotila.

Revontulentie 7, Espoo

Vuokrattava, Toimistotila, Espoo, Tapiola, 361 m2

Kohde #27302

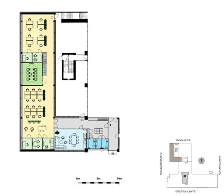
Kuvaus

Kauniilla puistomaisemalle varustettu läpitalon muuttovalmis toimisto. Viisi vetäytymistilaa ja yksi 8 hengen neuvotteluhuone.Neuvotteluhuone jakaa avotoimiston kahteen erilliseen osioon. Vuokrattavissa osana 642m2 tilaa jolloin muodostuu yhteensä 1003,5m2 toimisto.

Ajaton ja uniikki. Uusi ja klassinen. Inspiroiva ja luonnonläheinen. Revontulentie 7 on merellisessä Tapiolassa kohoava moderni toimistoidylli täynnä yhteisöllisyyttä, mielenrauhaa ja mahdollisuuksia. Länsimetron varrella, Keilaniemen ja Otaniemen naapurissa sijaitseva Revontulentie 7 tarjoaa sinulle nykyaikaiset toimitilat, monipuoliset liikuntamahdollisuudet, sekä huippulaadukkaat palvelut, jotka nostavat yrityksesi hyvinvoinnin uudelle tasolle.

Liikenneyhteydet

Metroasema 300 m

Yhteystiedot

Toimistovuokraus
Toimistovuokraus

0108368400

info.fi@cushwake.com

Toimistotila

Revontulentie 7
Espoo 02100

  • Kaupunginosa: Tapiola
  • Pinta-ala: 361 m2
  • Kerros: 2. kerros
  • Vapautuu:
  • Rakennusvuosi: 1978
  • Vuokraluokka: 21-24 €/m2

Ota yhteyttä kohteesta

Jos kiinnostuit kohteesta, ota yhteyttä puhelimitse tai sähköisellä yhteydenottolomakkeella.

Puhelin: 0108368400

Hyväksyn tietosuojaselosteen

Cushman & Wakefield suosittelee

Etkö löydä etsimääsi?

Ota yhteyttä meidän asiantuntijaan.