Vapaat toimitilat
Toimiva, viihtyisä ja sopivan kokoinen toimitila on tärkeä osa yrityksen menestystä. Cushman & Wakefield auttaa tiloja hakevia yrityksiä ja sijoittajia löytämään parhaat toimitilat, oli sitten kyseessä toimistotila, liiketila, varastotila tai tuotantotila.
John Stenbergin ranta 2, Helsinki
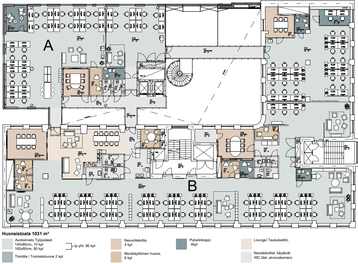
Vuokrattava, Toimistotila, Helsinki, Hakaniemi, 1031 m2
Kohde #34725
Kuvaus
Vuokrattavana valoisa 1 031 m² toimistotila rakennuksen 4. kerroksessa John Stenbergin rannan ja Siltasaarenkadun kulmassa.
Näyttävällä paikalla meren äärellä sijaitseva toimistorakennus tarjoaa huippumodernisoituja toimitiloja, jotka erottuvat edukseen sekä tehokkailla ja joustavilla pohjaratkaisuillaan että upeilla maisemillaan. Kunkin kerroksen pinta-ala on reilusti yli 1 000 m², ja tilat on mahdollista jakaa kahdelle käyttäjälle noin 300 m² ja 730 m² kokonaisuuksiin, tarjoten joustavuutta erilaisten yritysten tarpeisiin.
John Stenbergin ranta 2 – John S. on hieno punatiilinen talo aivan Pitkänsillan kupeessa, Helsingin Hakaniemessä. Talo toimi pitkään Wärtsilän pääkonttorina, ja nyt siitä on rakentunut upea monen käyttäjän toimistotalo. Kiinteistö koostuu kahdesta osasta. Vanhempi puoli on rakennettu vuonna 1938, ja se on Museoviraston suojelema. Kiinteistössä tehtiin 2019 yleisten tilojen remontti, jossa uudistettiin talon ilmettä ja henkeä.
John Stenbergin ranta 2 on jykevä toimistotalo, joka tarjoaa yrityksille modernit tilat erinomaisten liikenneyhteyksien varrelta. Lähellä on monipuoliset palvelut, ja talon omatkin palvelut ovat ensiluokkaiset. Aulapalvelun lisäksi talossa on oma henkilöstöravintola, vuokrattavia neuvottelutiloja sekä komeat edustustilat. Kiinteistössä on myös kuntosali, parkkihalli ja sisäpaikkoja pyörille.
Liikenneyhteydet
Hakaniemen saavutettavuus eri puolilta pääkaupunkiseutua on erinomainen: käytettävissä ovat raitiovaunut, metro ja bussit. Vain muutaman loikan päässä Kaisaniemestä tai Rautatieasemalta. Metrolla matka Rautatieasemalle kestää kolmisen minuuttia.
Yhteystiedot
Toimistovuokraus
0108368400
info.fi@cushwake.com
Pohjakuvat / Esitteet
Ei ole saatavilla
Kiinteistön muut vapaat tilat
-
John Stenbergin ranta 2
Toimistotila, 153m2
-
John Stenbergin ranta 2
Toimistotila, 1029m2
-
John Stenbergin ranta 2
Toimistotila, 1031m2
-
John Stenbergin ranta 2
Toimistotila, 420m2
-
John Stenbergin ranta 2
Toimistotila, 1013m2
-
John Stenbergin ranta 2
Toimistotila, 1030m2
+9
Toimistotila
John Stenbergin ranta 2
Helsinki 00530
- Kaupunginosa: Hakaniemi
- Pinta-ala: 1031 m2
- Kerros: 4. kerros
- Vapautuu:
- Rakennusvuosi: 1938
- Vuokraluokka: 25-30 €/m2