Vapaat toimitilat

Toimiva, viihtyisä ja sopivan kokoinen toimitila on tärkeä osa yrityksen menestystä. Cushman & Wakefield auttaa tiloja hakevia yrityksiä ja sijoittajia löytämään parhaat toimitilat, oli sitten kyseessä toimistotila, liiketila, varastotila tai tuotantotila.

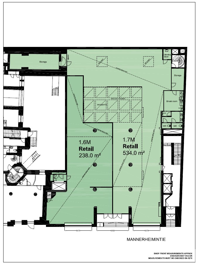
Mannerheimintie 2, Helsinki

Vuokrattava, Liiketila, Helsinki, Kamppi, 238 m2

Kohde #34701

Kuvaus

Vuokrattavana edustava ja valoisa katutason liiketila osoitteessa Mannerheimintie 2, yhdellä Helsingin vilkkaimmista ja näkyvimmistä paikoista. Tämä 238 m² liiketila sijaitsee aivan keskustan ytimessä, erinomaisien kulkuyhteyksien varrella ja vilkkaan jalankulkuliikenteen keskellä. Sijainti tarjoaa loistavan näkyvyyden ja jatkuvan asiakasvirran, mikä tekee tilasta ihanteellisen monenlaiseen liiketoimintaan. Tällä hetkellä tilassa toimii huonekaluliike Vepsäläinen.

Liiketilojen vuokraus ja tiedustelut: C&W Retail Services, puh. 0108368400, retail.fi@cushwake.com.

Bulevardi 1/ Mannerheimintie 2 komea, vuonna 1890 valmistunut arvokiinteistö, sijaitsee Helsingin ydinkeskustassa, Mannerheimintien ja Bulevardin kulmassa. Jyhkeä talo on täynnä hienoja detaljeja, ulokkeita ja koristeita. Upea porraskäytävä, jonka upeat katto- ja seinämaalaukset vangitsevat katseen. Alun perin viehättävänä asuinrakennuksena toiminut kiinteistö on entisöity huolellisesti ja muokattu tehokkaasti toimitilakäyttöön sopivaksi. Talotekniikka ja tietoliikenteen vaatimukset vastaavat täysin nykypäivän vaatimuksia.

Ympäristöstä löytyy kaikki päivittäin tarvittavat palvelut. Kiinteistössä on oma parkkihalli 12 autolle. Lisäksi Erottajan pysköintihallin sisäänkäynti on kadun toisella puolella. Viihtyisyyttä alueella lisäävät lähellä sijaitsevat Vanha kirkkopuisto ja Esplanadin puisto.

Kohteen omistaa Sponda Oyj.

Liikenneyhteydet

Keskeisellä paikalla sijaitsevalta kiinteistöltä on hyvät liikenneyhteydet. Mannerheimintiellä ja Bulevardilla liikennöivät bussit sekä raitiovaunut ja Helsingin päärautatieasemakin on aivan lähellä.

Yhteystiedot

C&W Retail Services
C&W Retail Services

0108368400

retail.fi@cushwake.com

Pohjakuvat / Esitteet

Ei ole saatavilla

Liiketila

Mannerheimintie 2
Helsinki 00100

  • Kaupunginosa: Kamppi
  • Pinta-ala: 238 m2
  • Kerros: Katutaso
  • Vapautuu:
  • Rakennusvuosi: 1890
  • Vuokraluokka: €/m2

Ota yhteyttä kohteesta

Jos kiinnostuit kohteesta, ota yhteyttä puhelimitse tai sähköisellä yhteydenottolomakkeella.

Puhelin: 0108368400

Hyväksyn tietosuojaselosteen

Cushman & Wakefield suosittelee

Etkö löydä etsimääsi?

Ota yhteyttä meidän asiantuntijaan.