Vapaat toimitilat
Toimiva, viihtyisä ja sopivan kokoinen toimitila on tärkeä osa yrityksen menestystä. Cushman & Wakefield auttaa tiloja hakevia yrityksiä ja sijoittajia löytämään parhaat toimitilat, oli sitten kyseessä toimistotila, liiketila, varastotila tai tuotantotila.
Sörnäisten rantatie 29, Helsinki
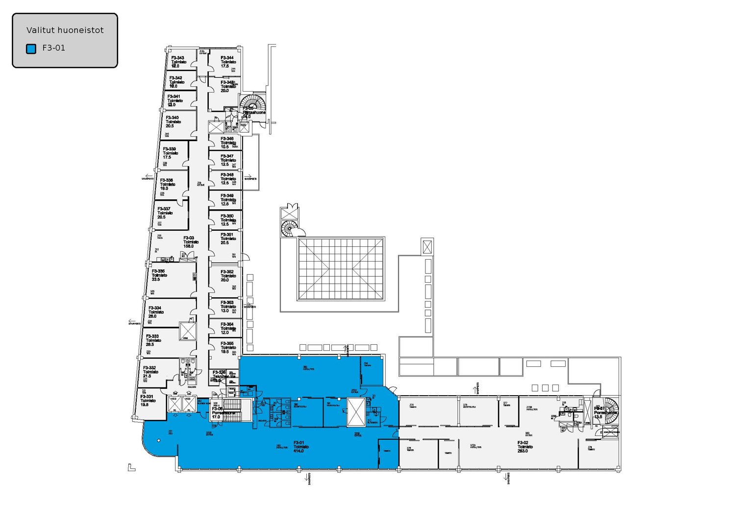
Vuokrattava, Toimistotila, Helsinki, Sörnäinen, 414 m2
Kohde #27761
Kuvaus
Vuokrattavana 3. kerroksen valoisa 414 m2 toimisto. Tilasta saa joustavan kokonaisuudeen monenlaisiin tarpeisiin.
Täysin uudistettu, merihenkinen, täyden palvelun Kalasataman Kummeli Business Park palvelee erilaisten asiakkaiden tarpeita joustavasti. Erinomainen sijainti Sörnäisten, Kalasataman ja Suvilahden keskiössä, metro ja REDI ovat kävelymatkan päässä. Kiinteistössä lounasravintola, aulapalvelu, autohalli (200 m2/yksi pysäköintioikeus).
Täyden palvelun business park Kalasataman Kummeli palvelee joustavasti erilaisten asiakkaiden tarpeita. Industrial-henkinen merellinen kiinteistö on remontoitu täysin vuonna 2015. Merkittävä kiinteistökokonaisuus Helsingin Sörnäisissä, Sörnäisten rantatien ja Vilhonvuorenkadun kulmassa. Katutasossa liiketilaa ja ylemmissä kerroksissa toimistotiloja. Yhdeksän vuokrattavaa neuvottelutilaa. Kiinteistössä myös korkeatasoinen lounasravintola. Talotekniikka, ilmanvaihto, jäähdytys ja IT-tekniikka on täysin uudistettu. Kaukokylmän avulla rakennus jäähtyy haluttuun lämpötilaan. Korkeatasoinen lounasravintola ja monipuoliset palvelut. Talossa on aulapalvelu ja isot hissit esteetöntä kulkua varten. Pyöräparkki, pukuhuoneet ja suihkut. Ylimmän kerroksen auditoriosta upea näköala yli Helsingin. Autohallista vuokrattavissa autopaikkoja. Vieraspysäköinti kadun toisella puolella.
Liikenneyhteydet
Kiinteistölle on erinomaiset kulkuyhteydet. Sörnäisten ja Kalasataman metroasemalle on kävelyetäisyys n. 300m ja lähimmät bussit tulevat aivan talon eteen. Pasilan juna-asemalta pääsee muutamassa minuutissa bussilla.
Yhteystiedot
Toimistovuokraus
0108368400
info.fi@cushwake.com
Pohjakuvat / Esitteet
Ei ole saatavilla
Kiinteistön muut vapaat tilat
-
Sörnäisten rantatie 29
Toimistotila, 278m2
-
Sörnäisten rantatie 29
Toimistotila, 414m2
-
Sörnäisten rantatie 29
Toimistotila, 318m2
-
Sörnäisten rantatie 29
Toimistotila, 920m2
-
Sörnäisten rantatie 29
Toimistotila, 493m2
-
Sörnäisten rantatie 29
Toimistotila, 414m2
-
Sörnäisten rantatie 29
Toimistotila, 279m2
+11
Toimistotila
Sörnäisten rantatie 29
Helsinki 00580
- Kaupunginosa: Sörnäinen
- Pinta-ala: 414 m2
- Kerros: 3. kerros
- Vapautuu:
- Rakennusvuosi: 1993
- Vuokraluokka: 16-20 €/m2