Vapaat toimitilat

Toimiva, viihtyisä ja sopivan kokoinen toimitila on tärkeä osa yrityksen menestystä. Cushman & Wakefield auttaa tiloja hakevia yrityksiä ja sijoittajia löytämään parhaat toimitilat, oli sitten kyseessä toimistotila, liiketila, varastotila tai tuotantotila.

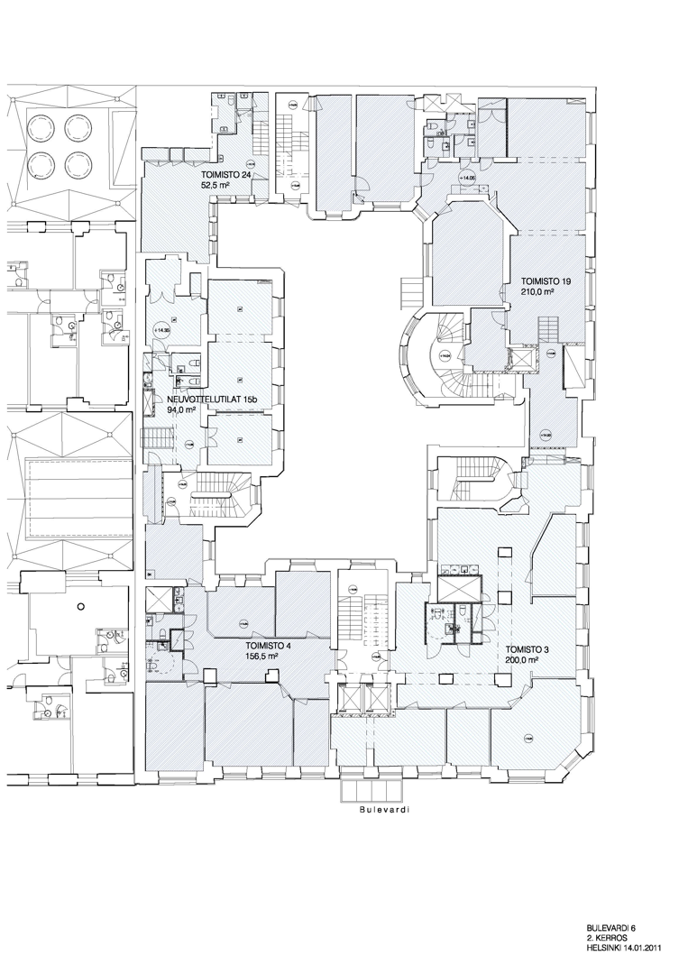
Bulevardi 6, Helsinki

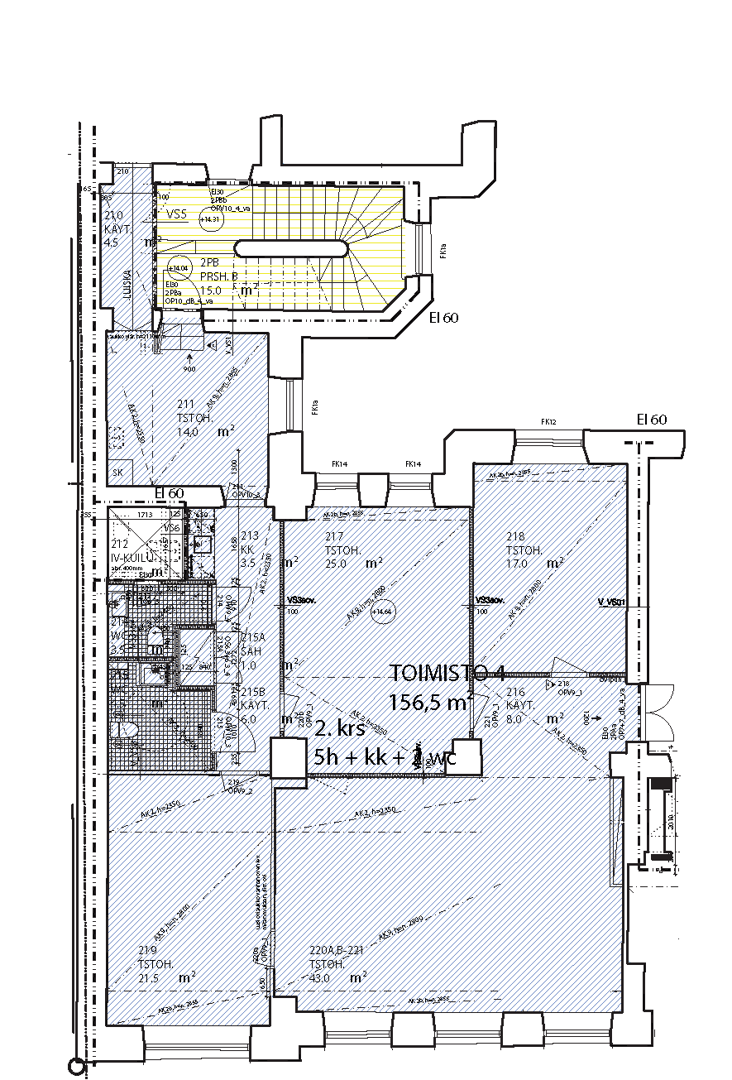
Vuokrattava, Toimistotila, Helsinki, Kamppi, 156 m2

Kohde #25142

Kuvaus

Vuokrattavana 156,5 m2 toimistotila Bulevardilta. Toimisto sijaitsee 2. kerroksessa, johon saavutaan hissillä upean pääsisäänkäynnin kautta Bulevardilta. Tila käsittää 5 valoisaa huonetilaa, joista yksi on iso yhteistila, sekä toimistokeittiön ja laadukkaat sosiaalitilat. Toimitilan ikkunat avaavat upean näkymän Bulevardille. Tilassa on jäähdytetty koneellinen ilmastointi ja Cat 6a-tasoiset IT-valmiudet. Kaikissa tiloissa on parkettilattiat.

Bulevardin Kulmassa voit pysäköidä suoraan rakennuksen alapuolelle. Q-Park-pysäköintihalli tarjoaa peräti 600 autopaikkaa sekä suoran pääsyn Bulevardi 2-4:een omalla katutason hissillä. Lämpimässä hallissa on mahdollisuus pysäköintiin niin lyhytaikaisesti kuin pidemmälläkin sopimuksella.
Pyöräilijöille on rakennettu erilliset suihku- ja sosiaalitilat kiinteistön kellaritiloihin.

Bulevardin ja Yrjönkadun kulmauksessa sijaitseva kiinteistö on rakennettu vuonna 1888 ja sen on suunnitellut arkkitehti Theodor Granstedt.

Kiinteistössä on vuokrattavissa neuvottelukeskus kaikilla Hotelli Klaus K:n palveluilla. Kevyen liikenteen suosijoille kiinteistöön on erilliset suihku- ja sosiaalitilat. Huoneisto ja koko kiinteistö on saneerattu vuonna 2011 kestävän kehityksen periaatteita noudattaen.

Liikenneyhteydet

Raitiovaunut pysähtyvät kiinteistön edessä. Bulevardia pitkin kulkee useita bussilinjoja. Kampin keskus, Elielin aukio ja Rautatientori sijaitsevat kävelyetäisyydellä.

Yhteystiedot

Toimistovuokraus
Toimistovuokraus

0108368400

info.fi@cushwake.com

Toimistotila

Bulevardi 6
Helsinki 00120

  • Kaupunginosa: Kamppi
  • Pinta-ala: 156 m2
  • Kerros: 2. kerros
  • Vapautuu: 1.7.2026
  • Rakennusvuosi: 1888
  • Vuokraluokka: 31-35 €/m2

Ota yhteyttä kohteesta

Jos kiinnostuit kohteesta, ota yhteyttä puhelimitse tai sähköisellä yhteydenottolomakkeella.

Puhelin: 0108368400

Hyväksyn tietosuojaselosteen

Cushman & Wakefield suosittelee

Etkö löydä etsimääsi?

Ota yhteyttä meidän asiantuntijaan.