Vapaat toimitilat

Toimiva, viihtyisä ja sopivan kokoinen toimitila on tärkeä osa yrityksen menestystä. Cushman & Wakefield auttaa tiloja hakevia yrityksiä ja sijoittajia löytämään parhaat toimitilat, oli sitten kyseessä toimistotila, liiketila, varastotila tai tuotantotila.

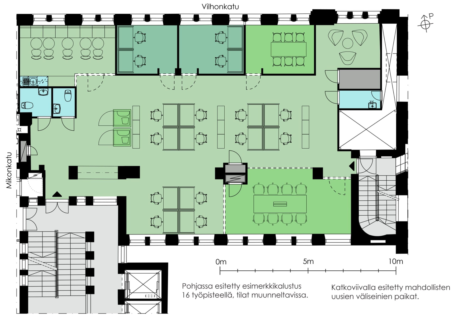
Mikonkatu 19, Helsinki

Vuokrattava, Toimistotila, Helsinki, Kluuvi, 210 m2

Kohde #20788

Kuvaus

Täysin muuttovalmis tila näkymillä Vilhonkadulle, käynti Mikonkadulta. Valoisat ja siistit pinnat, useampi huone, neuvotteluhuone sekä avotilaa. Sisävalokuvat ovat malliesimerkkejä kiinteistön tiloista.

Historiaa henkivä toimisto- ja liikekiinteistö Fenniakorttelissa. Täysin kunnostetut tilat luovat upeat puitteet erilaisille yrityksille.

Kiinteistö koostuu kahdesta rakennuksesta, joista toiseen on kulku Mikonkadulta ja toiseen Vilhonkadulta. Rakennukset ovat osittain yhteydessä toisiinsa. Osassa tiloista on saneerauksen yhteydessä kunnostettuja, alkuperäisiä elementtejä kuten upea rappukäytävä ja vanha kakluuni.

Kohteen omistaa Sponda Oyj.

Liikenneyhteydet

Julkisilla kulkuvälineillä, raitiovaunulla, metrolla ja linja-autolla pääsee aivan kohteen viereen.

Yhteystiedot

Toimistovuokraus
Toimistovuokraus

0108368400

info.fi@cushwake.com

Pohjakuvat / Esitteet

Ei ole saatavilla

Toimistotila

Mikonkatu 19
Helsinki 00100

  • Kaupunginosa: Kluuvi
  • Pinta-ala: 210 m2
  • Kerros: 4. kerros
  • Vapautuu:
  • Rakennusvuosi: 1889 ja 1921
  • Vuokraluokka: €/m2

Ota yhteyttä kohteesta

Jos kiinnostuit kohteesta, ota yhteyttä puhelimitse tai sähköisellä yhteydenottolomakkeella.

Puhelin: 0108368400

Hyväksyn tietosuojaselosteen

Cushman & Wakefield suosittelee

Etkö löydä etsimääsi?

Ota yhteyttä meidän asiantuntijaan.