Vapaat toimitilat

Toimiva, viihtyisä ja sopivan kokoinen toimitila on tärkeä osa yrityksen menestystä. Cushman & Wakefield auttaa tiloja hakevia yrityksiä ja sijoittajia löytämään parhaat toimitilat, oli sitten kyseessä toimistotila, liiketila, varastotila tai tuotantotila.

Esterinportti 2, Helsinki

Vuokrattava, Toimistotila, Helsinki, Länsi-Pasila, 912 m2

Kohde #27439

Kuvaus

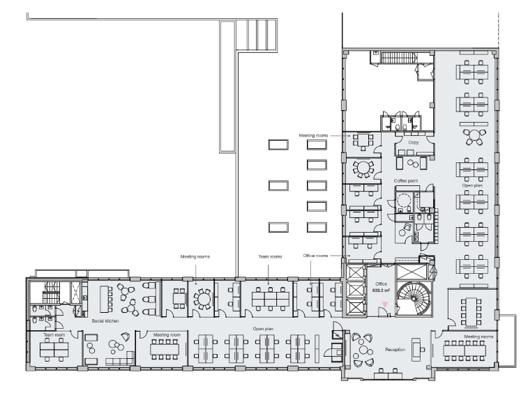
Vuokrattavana 2. kerroksen 912 m2 toimistotila, josta aukeaa näkymä suoraan Triplaan. Toimistossa on avotilaa, tiimi- ja neuvotteluhuoneita ja pienempiä työhuoneita.

Länsi-Pasilassa sijaitseva toimistokiinteistö. Rakennusvuosi 1983. Koko kiinteistö saneerattu 2009-2011. Kiinteistössä aulapalvelu, lounasravintola, edustussauna sekä kellarissa kuntosali ja sauna.

Liikenneyhteydet

Kiinteistö sijaitsee hyvien kulkuyhteyksien varrella. Raitiovaunu 7A pysähtyy kiinteistön lähellä. Lisäksi Pasilan juna-asema on kävelyetäisyydellä. Myös bussiyhteydet ovat hyvät.

Yhteystiedot

Toimistovuokraus
Toimistovuokraus

0108368400

info.fi@cushwake.com

Toimistotila

Esterinportti 2
Helsinki 00240

  • Kaupunginosa: Länsi-Pasila
  • Pinta-ala: 912 m2
  • Kerros: 2. kerros
  • Vapautuu:
  • Rakennusvuosi: 1983
  • Vuokraluokka: 21-24 €/m2

Ota yhteyttä kohteesta

Jos kiinnostuit kohteesta, ota yhteyttä puhelimitse tai sähköisellä yhteydenottolomakkeella.

Puhelin: 0108368400

Hyväksyn tietosuojaselosteen

Cushman & Wakefield suosittelee

Etkö löydä etsimääsi?

Ota yhteyttä meidän asiantuntijaan.