Vapaat toimitilat

Toimiva, viihtyisä ja sopivan kokoinen toimitila on tärkeä osa yrityksen menestystä. Cushman & Wakefield auttaa tiloja hakevia yrityksiä ja sijoittajia löytämään parhaat toimitilat, oli sitten kyseessä toimistotila, liiketila, varastotila tai tuotantotila.

Lönnrotinkatu 11, Helsinki

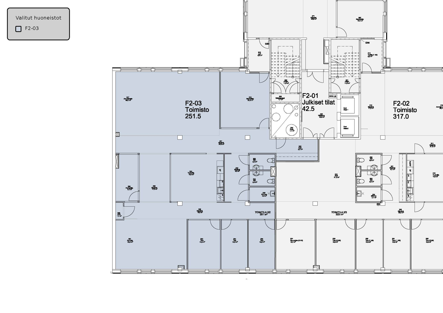
Vuokrattava, Toimistotila, Helsinki, Kamppi, 254 m2

Kohde #34703

Kuvaus

Vuokrattavana 2. kerroksen 254 m² toimistotila täysin uudistetussa kiinteistössä osoitteessa Lönnrotinkatu 11. Tämä valoisa ja moderni tila tarjoaa erinomaiset puitteet erilaisille yrityksille.
Lönnrotinkatu 11 sijaitsee erinomaisella paikalla Helsingin keskustan tuntumassa, lähellä palveluita ja liikenneyhteyksiä. Tämä tila sopii monenlaisille yrityksille, jotka arvostavat modernia työympäristöä ja keskeistä sijaintia.

Lönnrotinkatu 11 (Lönkka 11) on vuonna 1972 valmistunut toimistorakennus, joka sijaitsee Helsingin ydinkeskustassa, erinomaisten liikenneyhteyksien äärellä. Kiinteistön kaikki sisätilat ja talotekniikka on uudistettu vastaamaan nykypäivän toimitilavaatimuksia ja rakennuksen julkisivu on saanut uuden ilmeen. Kiinteistöllä on LEED Platinum maininta. Talon katutasossa palvelevat ravintola ja kahvila. Kiinteistössä on vuokrattavia autopaikkoja sekä latauspaikkoja sähköautoille.

Kohde sijaitsee erittäin keskeisellä paikalla Helsingin keskustassa Kampissa, muutaman korttelin päässä Mannerheimintiestä. Puolen kilometrin säteellä sijaitsevat mm. Kampin kauppakeskus, Stockmannin tavaratalo ja Forumin kauppakeskus.

Ensimmäiseen kerrokseen sijoittuu liiketiloja ja palveluita. Toimistokerrokset sijoittuvat kerroksiin 2.-6. Näiden suunnittelussa huomioidaan erityisesti tilojen muuntojoustavuus. Pysäköintimahdollisuudet ovat poikkeuksellisen hyvät; kellarikerroksessa on 18 autopaikkaa ja piha-alueella 22 autopaikkaa. Kohteen lähellä on myös runsaasti pysäköintilaitoksia.

Liikenneyhteydet

Raitiovaunupysäkille 300 m (linjat 3, 6, 7A, 7B ja 10). Kampin metroasemalle ja bussiterminaaliin 600 m. Rautatieasemalle 900 m.

Yhteystiedot

Toimistovuokraus
Toimistovuokraus

0108368400

info.fi@cushwake.com

Toimistotila

Lönnrotinkatu 11
Helsinki 00120

  • Kaupunginosa: Kamppi
  • Pinta-ala: 254 m2
  • Kerros: 2. kerros
  • Vapautuu: 1.7.2026
  • Rakennusvuosi: 1972
  • Vuokraluokka: 25-30 €/m2

Ota yhteyttä kohteesta

Jos kiinnostuit kohteesta, ota yhteyttä puhelimitse tai sähköisellä yhteydenottolomakkeella.

Puhelin: 0108368400

Hyväksyn tietosuojaselosteen

Cushman & Wakefield suosittelee

Etkö löydä etsimääsi?

Ota yhteyttä meidän asiantuntijaan.