Vapaat toimitilat

Toimiva, viihtyisä ja sopivan kokoinen toimitila on tärkeä osa yrityksen menestystä. Cushman & Wakefield auttaa tiloja hakevia yrityksiä ja sijoittajia löytämään parhaat toimitilat, oli sitten kyseessä toimistotila, liiketila, varastotila tai tuotantotila.

Vilhonkatu 5, Helsinki

Vuokrattava, Toimistotila, Helsinki, Kluuvi, 309 m2

Kohde #27383

Kuvaus

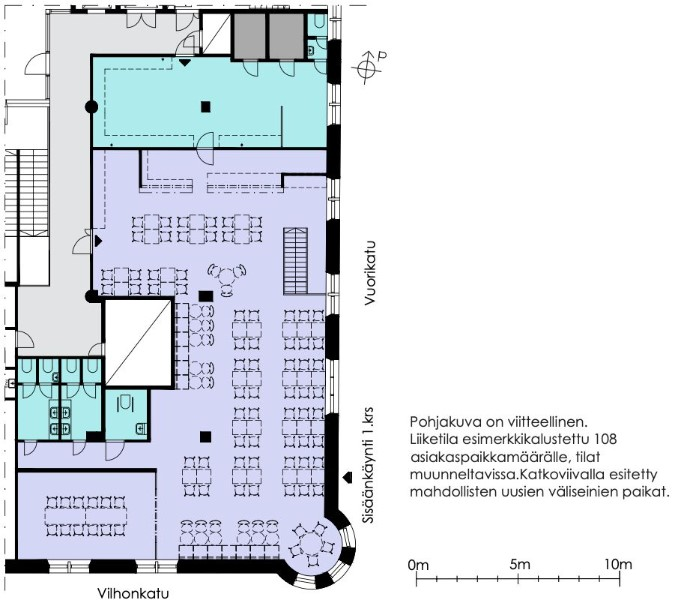
Tarjolla 309 m² toimistotila 2. kerroksessa, joka sijaitsee erinomaisella paikalla suoraan Helsingin yliopiston metrosisäänkäynnin yläpuolella. Tilaan on oma katutason sisäänkäynti Vuorikadun puolelta, mikä tekee siitä helposti saavutettavan.

Vuonna 1921 valmistunut tyylikäs kiinteistö keskeisellä paikalla Kluuvissa Rautatieaseman läheisyydessä. Arvokiinteistön Vilhonkadun ja Vuorikadun puoleiset vanhat julkisivut ovat suojeltuja. Muu osa kiinteistöstä on uutta. Osassa tiloista on upeita, historiaa henkiviä yksityiskohtia, kuten uniikki kulmaneuvottelutila ja korkeat huoneet. Tilat on tekniikaltaan ja jäähdytykseltään saneerattu moderniin toimistokäyttöön ja ne ovat helposti muunneltavissa yrityskohtaisesti. Katutasossa on liiketiloja ja ylemmissä kerroksissa toimistotilaa. Rakennuksessa on koneellinen jäähdytys, tilakohtainen lämpötilansäätö, avoin kaapelointijärjstelmä (CAT6) ja moderni valaistusratkaisu. Toimistotilojen pukuhuoneet, tavaran vastaanotot ja jätetilat ovat tasolla -5, johon on hissiyhteys.

Vastapäisessä Fenniakorttelissa on mittava määrä ravintoloita ja muita viihdepalveluita. Keskeinen sijainti ydinkeskustassa takaa sen, että kaikki kaupalliset ja yrityspalvelut sijaitsevat lyhyen kävelymatkan etäisyydellä.

Kohteen omistaa Sponda Oyj.

Liikenneyhteydet

Elielin aukiolle ja Kampin keskukseen on parin minuutin kävelymatka. Raitiovaunupysäkkejä on sekä Kaisaniemenkadulla että Kaivokadulla. Kiinteistön liiketiloista jalankulkijat pääsevät sisäteitse Kaisaniemen metroasemalle.

Yhteystiedot

Toimistovuokraus
Toimistovuokraus

0108368400

info.fi@cushwake.com

Toimistotila

Vilhonkatu 5
Helsinki 00100

  • Kaupunginosa: Kluuvi
  • Pinta-ala: 309 m2
  • Kerros: 2. kerros
  • Vapautuu:
  • Rakennusvuosi: 1921
  • Vuokraluokka: €/m2

Ota yhteyttä kohteesta

Jos kiinnostuit kohteesta, ota yhteyttä puhelimitse tai sähköisellä yhteydenottolomakkeella.

Puhelin: 0108368400

Hyväksyn tietosuojaselosteen

Cushman & Wakefield suosittelee

Etkö löydä etsimääsi?

Ota yhteyttä meidän asiantuntijaan.