Vapaat toimitilat

Toimiva, viihtyisä ja sopivan kokoinen toimitila on tärkeä osa yrityksen menestystä. Cushman & Wakefield auttaa tiloja hakevia yrityksiä ja sijoittajia löytämään parhaat toimitilat, oli sitten kyseessä toimistotila, liiketila, varastotila tai tuotantotila.

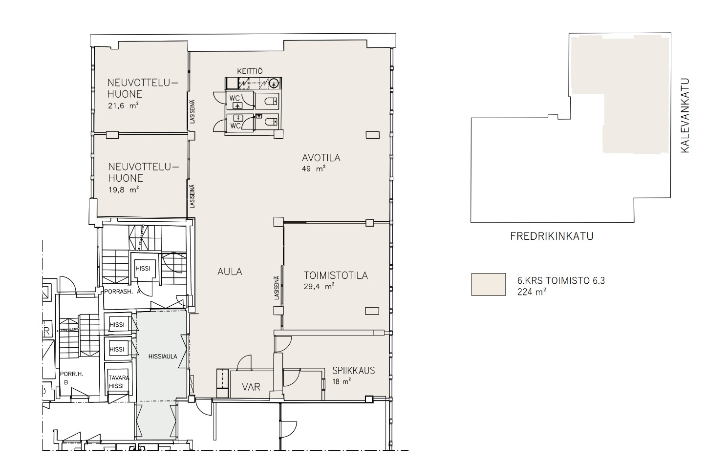
Fredrikinkatu 47, Helsinki

Vuokrattava, Toimistotila, Helsinki, Kamppi, 224 m2

Kohde #34866

Kuvaus

Vuokrattavana 6. kerroksen 224 m2 toimistotila. Erittäin siisti, valoisa ja muuttovalmis toimisto. Tilassa kaksi neuvotteluhuonetta, kaksi erikokoista toimistohuonetta sekä avotilaa.

Seitsemänkerroksinen liikerakennus Kampissa. Lisäksi kaksi maanalaista autohalli- ja varastokerrosta. Erinomainen sijainti. Ylemmät kerrokset ovat toimistokäytössä.

Vuonna 1955 rakennettu kiinteistö on läpikäynyt laajalti peruskorjauksia, mm. v.2015 julkisivukorjauksen.

Liikenneyhteydet

Kiinteistölle erinomaiset liikenneyhteydet. Bussiyhteydet Kampin keskuksesta (200m). Myös metro Kampin keskuksesta (400m). Mannerheimintiellä ja Bulevardilla raitiovaunuyhteyksiä (400m).

Yhteystiedot

Toimistovuokraus
Toimistovuokraus

0108368400

info.fi@cushwake.com

Toimistotila

Fredrikinkatu 47
Helsinki 00100

  • Kaupunginosa: Kamppi
  • Pinta-ala: 224 m2
  • Kerros: 6. kerros
  • Vapautuu: 1.6.2026
  • Rakennusvuosi: 1955
  • Vuokraluokka: 25-30 €/m2

Ota yhteyttä kohteesta

Jos kiinnostuit kohteesta, ota yhteyttä puhelimitse tai sähköisellä yhteydenottolomakkeella.

Puhelin: 0108368400

Hyväksyn tietosuojaselosteen

Cushman & Wakefield suosittelee

Etkö löydä etsimääsi?

Ota yhteyttä meidän asiantuntijaan.