Vapaat toimitilat

Toimiva, viihtyisä ja sopivan kokoinen toimitila on tärkeä osa yrityksen menestystä. Cushman & Wakefield auttaa tiloja hakevia yrityksiä ja sijoittajia löytämään parhaat toimitilat, oli sitten kyseessä toimistotila, liiketila, varastotila tai tuotantotila.

Ruoholahdenkatu 14, Helsinki

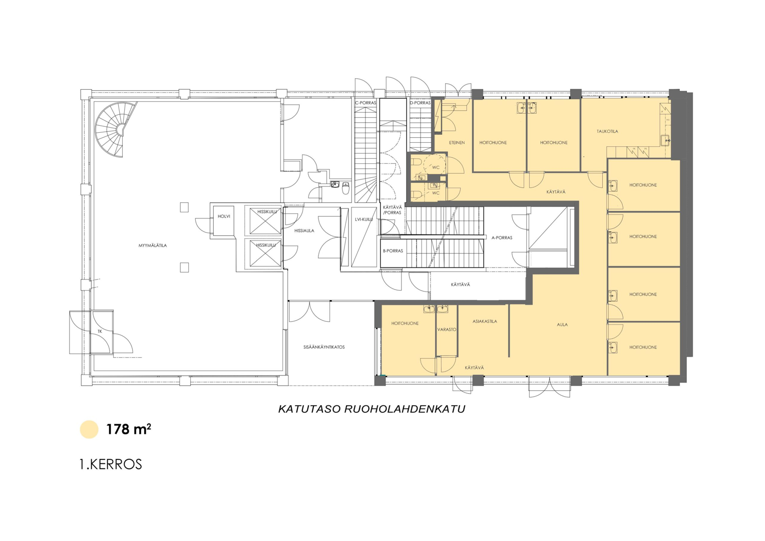
Vuokrattava, Toimistotila, Helsinki, Kamppi, 178 m2

Kohde #34647

Kuvaus

Vuokrattavana katutason valoisa 178 m2 liiketila vilkkaan Ruoholahdenkadun varrella. Liiketilassa on taukotilan ja vastaanottoaulan lisäksi seitsemän vesipisteellistä vastaanottohuonetta, joiden ansiosta tila soveltuu erityisen hyvin esimerkiksi erilaiseen kauneudenhoito- ja hyvinvointialan liiketoimintaan.

Sisävalokuvat ovat esimerkkejä ja havainnekuvia kiinteistön tiloista.

Ruoholahdenkatu 14 on tyylikäs toimistotalo Helsingin Kampissa, aivan Lastenlehdon puiston tuntumassa. Perinteikkääseen 60-luvun kiinteistöön on remontoitu moderneja ja muunneltavia toimitiloja, jotka täyttävät vaativammatkin tarpeet. Näissä toimistoissa on hyvää arjen fiilistä runsain mitoin, ikkunoista aukeaa avarat näkymät naapuruston puistoihin ja kaupungin kattojen ylle. Rakennuksen aikakauden tyyliin juuri remontoidut aulatilat toivottavat tulijan tervetulleeksi heti ulko-ovesta sisään astuttaessa.

Alue tarjoaa erinomaiset liikenneyhteydet, jotka tekevät arjesta helpompaa ja työmatkoista sujuvampia. Lähimmät julkisen liikenteen pysäkit sijaitsevat aivan talon edessä, ja lähimmälle metroasemalle Kamppiin matkan taittaa alle kymmenessä minuutissa. Työmatkapyöräilijöillä on vain pari polkaisua baanalle ja autollakin saapuva kurvaa Ruoholahdenkadulle helposti suoraan Länsiväylältä.

Liikenneyhteydet

Erinomaiset liikenneyhteydet. Bussipysäkki ja raitiovaunupysäkki edessä, Kampin metroasemalle alle 5 minuuttia. Kaikki Espoon bussit pysähtyvät kiinteistön lähellä olevalla pysäkillä. Tilan edessä kadunvarsipysäköinti.

Yhteystiedot

Toimistovuokraus
Toimistovuokraus

0108368400

info.fi@cushwake.com

Toimistotila

Ruoholahdenkatu 14
Helsinki 00180

  • Kaupunginosa: Kamppi
  • Pinta-ala: 178 m2
  • Kerros: 1. kerros
  • Vapautuu:
  • Rakennusvuosi: 1965
  • Vuokraluokka: 21-24 €/m2

Ota yhteyttä kohteesta

Jos kiinnostuit kohteesta, ota yhteyttä puhelimitse tai sähköisellä yhteydenottolomakkeella.

Puhelin: 0108368400

Hyväksyn tietosuojaselosteen

Cushman & Wakefield suosittelee

Etkö löydä etsimääsi?

Ota yhteyttä meidän asiantuntijaan.